Premier Walk In Bathtub Sizes - How Do Walk In Baths Work How Much Do They Cost More Ability : Side rails are a must even for step in showers.

Premier Walk In Bathtub Sizes - How Do Walk In Baths Work How Much Do They Cost More Ability : Side rails are a must even for step in showers.. Side rails are a must even for step in showers. Often used by the elderly or people living with. Complete with hand held shower and faucet, these walkin baths are a great choice for seniors and aging in place solutions. Luxury bathing is a right, not a privilege. Baths come in all shapes and sizes, so water usage is an important concern when choosing your tub.

We are leading the world in rv and marine bathtubs and surrounds in a huge selection of sizes and styles. Walk in baths are the ideal solution! Their width ranges from 25 to 60 inches (30 to 32 inches is the most common width size) and they typically have a height of around 40 inches. Universal tubs rampart 5 ft. Premier care bath walk in tub prices.

2021 Cost To Install A Walk In Tub Walk In Bathtub Prices
2021 Cost To Install A Walk In Tub Walk In Bathtub Prices from cdn.fixr.com
Most elderly people don't like them and prefer a step in shower, and using a shower chair. Ella wheelchair transfer 52 in. The easy bath size / dimensions: If style is important to you, a clawfoot tub is a great option that combines aesthetics and function. Premier model name / number: The big texan (2 sizes) 33x55x40 and 35x55x40. Baths come in all shapes and sizes, so water usage is an important concern when choosing your tub. Side rails are a must even for step in showers.

The bath can be customized from 52 to 60 inches long, and from 28 to 32 inches wide, which allows it to fit nearly any space.

Thank you, miami valley premier walk in tubs! The easy bath size / dimensions: If stepping over the bath side is the only problem, then a full length walk in bath could be your product of choice. Luxury bathing is a right, not a privilege. Enjoy safer and more indulgent bathing today. The tall tub style baths allow you to take a soothing bath (or a shower) in a sitting position. More room , wider seats. Universal tubs rampart 5 ft. Walk in baths are the ideal solution! Their width ranges from 25 to 60 inches (30 to 32 inches is the most common width size) and they typically have a height of around 40 inches. Baths come in all shapes and sizes, so water usage is an important concern when choosing your tub. Ella wheelchair transfer 52 in. Small round tub all brand new never used for therapy.

I saved 6,000 dollars using miami valley premier. Complete with hand held shower and faucet, these walkin baths are a great choice for seniors and aging in place solutions. The shower wand is completely adaptable for any size bather. Enjoy safer and more indulgent bathing today. Rv bathtubs and rv surrounds that come in many sizes and styles to match most all rv bathrooms.

Jacuzzi Bathtub Collections Jacuzzi Com Jacuzzi
Jacuzzi Bathtub Collections Jacuzzi Com Jacuzzi from i.ytimg.com
Side rails are a must even for step in showers. Baths come in all shapes and sizes, so water usage is an important concern when choosing your tub. Enjoy safer and more indulgent bathing today. A 17 high seat adds comfort while you soak your aches and pains away. Complete with hand held shower and tub filler, this premier tub model is a suburb choice for seniors and aging in place solutions. If style is important to you, a clawfoot tub is a great option that combines aesthetics and function. Their width ranges from 25 to 60 inches (30 to 32 inches is the most common width size) and they typically have a height of around 40 inches. Premier care bath walk in tub prices.

Baths come in all shapes and sizes, so water usage is an important concern when choosing your tub.

More room , wider seats. Their backs are typically higher, making them ideal for lounging. Small round tub all brand new never used for therapy. Universal tubs rampart 5 ft. Complete with hand held shower and faucet, these walkin baths are a great choice for seniors and aging in place solutions. A 17 high seat adds comfort while you soak your aches and pains away. We carry all the rv plumbing ans accessories needed to make installing your rv bathtub easy and more productive. If style is important to you, a clawfoot tub is a great option that combines aesthetics and function. A 17 inch high seat adds comfort while you soak your aches and pains away. If stepping over the bath side is the only problem, then a full length walk in bath could be your product of choice. The easy bath size / dimensions: Everything looks and works great. The bath can be customized from 52 to 60 inches long, and from 28 to 32 inches wide, which allows it to fit nearly any space.

Had dealer come to home and sold it to them, paid 8000.00 for tub.comes with everything faucet. We are leading the world in rv and marine bathtubs and surrounds in a huge selection of sizes and styles. Ella wheelchair transfer 52 in. If stepping over the bath side is the only problem, then a full length walk in bath could be your product of choice. A 17 high seat adds comfort while you soak your aches and pains away.

Walk In Tub Dimensions Kohler Walk In Bath
Walk In Tub Dimensions Kohler Walk In Bath from www.kohlerwalkinbath.com
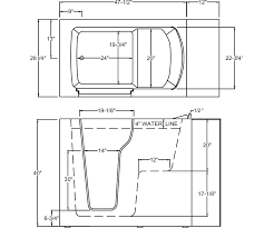
Premier care bath walk in tub prices. Complete with hand held shower and faucet, these walkin baths are a great choice for seniors and aging in place solutions. 51 l x 29 w x 37 h 5 high glow uap (4 minutes to fill) 5 hand ield shower xand 5 2 rvjdl drain (90 seconds to em) 5 easy reach drain dontrols with failsafe chain 5 three hrab cars 5 white bcrylic 5 slip resistant uextured gloor 5 17 ada dompliant seat Everything looks and works great. Walk in baths are the ideal solution! If style is important to you, a clawfoot tub is a great option that combines aesthetics and function. The tall tub style baths allow you to take a soothing bath (or a shower) in a sitting position. Outward swinging door for easy access!

We carry all the rv plumbing ans accessories needed to make installing your rv bathtub easy and more productive.

I saved 6,000 dollars using miami valley premier. Including options for larger and taller people. A 17 inch high seat adds comfort while you soak your aches and pains away. Complete with hand held shower and faucet, these walkin baths are a great choice for seniors and aging in place solutions. The shower wand is completely adaptable for any size bather. Dimensions 51.25 x 29.5 x 40.25 Moreover, if your surrounding materials are not up to the task, some modifications may have to be made in order for the tub to be installed. Rv bathtubs and rv surrounds that come in many sizes and styles to match most all rv bathrooms. If style is important to you, a clawfoot tub is a great option that combines aesthetics and function. Often used by the elderly or people living with. Side rails are a must even for step in showers. Qr code link to this post. Premier care bath walk in tub prices.